* : Les informations recueillies sur ce formulaire sont enregistrées dans un fichier informatisé par La Boite Immo agissant comme Sous-traitant du traitement pour la gestion de la clientèle/prospects de l'Agence / du Réseau qui reste Responsable du Traitement de vos Données personnelles. La base légale du traitement repose sur l'intérêt légitime de l'Agence / du Réseau. Elles sont conservées jusqu'à demande de suppression et sont destinées à l'Agence / au Réseau. Conformément à la loi « informatique et libertés », vous disposez des droits d’accès, de rectification, d’effacement, d’opposition, de limitation et de portabilité de vos données. Vous pouvez retirer votre consentement à tout moment en contactant directement l’Agence / Le Réseau. Consultez le site https://cnil.fr/fr pour plus d’informations sur vos droits. Si vous estimez, après avoir contacté l'Agence / le Réseau, que vos droits « Informatique et Libertés » ne sont pas respectés, vous pouvez adresser une réclamation à la CNIL. Nous vous informons de l’existence de la liste d'opposition au démarchage téléphonique « Bloctel », sur laquelle vous pouvez vous inscrire ici : https://www.bloctel.gouv.fr Dans le cadre de la protection des Données personnelles, nous vous invitons à ne pas inscrire de Données sensibles dans le champ de saisie libre.Ce site est protégé par reCAPTCHA, les Politiques de Confidentialité et les Conditions d'Utilisation de Google s'appliquent.
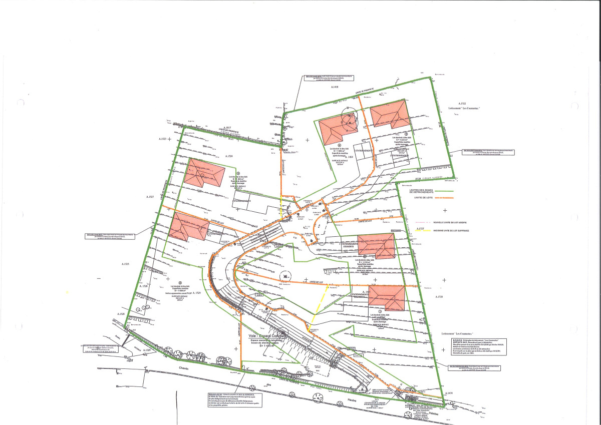
Opportunité rare - Lotissement de 6 lots sur la commune de Tourrettes-sur-Loup - Position dominante - Bonne exposition - Calme absolu - A partir de 295 000 € / Lot de 1063 m2 - Dossier estimatif à disposition pour construction d'une villa d'environ 140m2 Libre constructeur.
TSL IMMO
Tél : 04 93 24 14 58
Adresse mail : contact@tslimmo.com
Code postal 06140
surface terrain 1 063 m²
Vue Colines
Exposition SUD
Quartier TOURRETTES OUEST
Copropriété NON
Prix de vente honoraires TTC inclus 295 000 €
Comme beaucoup, notre site utilise les cookies
On aimerait vous accompagner pendant votre visite. En poursuivant, vous acceptez l'utilisation des cookies par ce site, afin de vous proposer des contenus adaptés et réaliser des statistiques !
Paramétrer
Cookies fonctionnelsCes cookies sont indispensables à la navigation sur le site, pour vous garantir un fonctionnement optimal. Ils ne peuvent donc pas être désactivés.
Statistiques de visitesPour améliorer votre expérience, on a besoin de savoir ce qui vous intéresse ! Les données récoltées sont anonymisées.
Google Analytics